1414PHO8

Inner Panels Ventilation
Door Clamping Hardware Filtered Fans
Heaters Type 1 Louvered Ventilating Plates
Terminal Kit Assemblies Temperature Controls
Swing Panel Kit Ground Wire Kits
Type 12 Mild Steel Junction Box
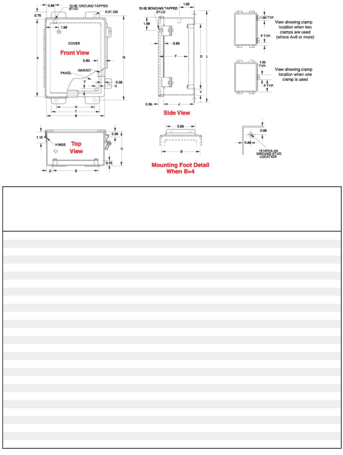
1414 PH Series
Continuous Hinge Door with Clamps
Application
Designed for use as instrument enclosures, electric, hydraulic or pneumatic
control housings, electrical junction boxes or terminal wiring enclosures.
Provides a degree of protection from falling dirt, dust, oil and water.
Standards
UL 508 Type 12, 13
CSA Type 12, 13
Complies with
NEMA Type 12 and 13
JIC EGP-1-1967 unless marked¹
IEC 60529, IP54
Construction
Body formed from 16 gauge or 14 gauge steel. Covers are formed from 14
gauge steel.
Smooth, continuously welded seams without knockouts, cutouts or holes.
Welded brackets provide for enclosure mounting.
Continuously hinged cover is secured with stainless steel clamps and
plated steel screws.
Seamless poured-in place gasket.
Models larger than 4" x 4" include a removable 14 gauge inner panel.
Internal threaded weld studs are provided for mounting inner panels.
A bonding stud is provided on the door and a grounding stud is provided in
the enclosure.
Finish
Cover and enclosure are phosphatized and finished in ANSI 61 gray
recoatable powder coating.
Removable inner panel is finished in white powder coating.
Accessories
Quality Products. Service Excellence.
Part No.
w/ Inner
Panel
Part No.
w/o Inner
Panel A B C D E F G H J L P T U V Y Z
Ship
Wt.
(lbs)
w/
Inner
Panel
Ship
Wt.
(lbs)
w/o
Inner
Panel
- 1414PH 4.00 4.00 3.00 - - - 4.75 2.00 2.64 5.50 1.50 3.00 - - - - - 2
1414PH 1414PHCLP¹ 6.00 4.00 3.00 4.88 2.88 2.51 6.75 2.00 2.64 7.50 2.50 3.00 0.31 0.31 0.56 0.56 3 2
1414PHG 1414PHGLP 8.00 6.00 3.50 6.75 4.88 31.00 8.75 4.00 3.14 9.50 1.00 5.00 0.31 0.25 0.63 0.56 6 5
1414PHRG 1414PHRGLP 6.00 8.00 3.50 4.88 6.75 31.00 6.75 6.00 3.14 7.50 2.50 7.00 0.25 0.31 0.56 0.63 6 5
- 1414PHA4¹ 4.00 4.00 4.00 - - - 4.75 2.00 3.64 5.50 1.50 3.00 - - - - - 3
1414PHC4¹ 1414PHC4LP¹ 6.00 4.00 4.00 4.88 2.88 3.51 6.75 2.00 3.64 7.50 2.50 3.00 0.31 0.31 0.56 0.56 4 3
1414PHE 1414PHELP 6.00 6.00 4.00 4.88 4.88 3.51 6.75 4.00 3.64 7.50 2.50 5.00 0.31 0.31 0.56 0.56 5 4
1414PHH4 1414PHH4LP 8.00 8.00 4.00 6.75 6.88 3.51 8.75 6.00 3.64 9.50 1.00 7.00 0.31 0.25 0.63 0.56 8 7
1414PHI 1414PHILP 10.00 8.00 4.00 8.75 6.88 3.51 1.75 6.00 3.64 11.50 1.00 7.00 0.31 0.25 0.63 0.56 1 8
1414PHRI 1414PHRILP 8.00 10.00 4.00 6.88 8.75 3.51 8.75 8.00 3.64 9.50 1.00 9.00 0.25 0.31 0.56 0.63 1 8
1414PHKC4 1414PHKC4LP 12.00 6.00 4.00 10.75 4.88 3.51 12.75 4.00 3.64 13.50 1.00 5.00 0.31 0.25 0.63 0.56 10 8
1414PHK 1414PHKLP 12.00 10.00 5.00 10.75 8.88 4.51 12.75 8.00 4.64 13.50 1.00 9.00 0.31 0.25 0.63 0.56 13 10
1414PHRK 1414PHRKLP 10.00 12.00 5.00 8.88 10.75 4.51 1.75 10.00 4.64 11.50 1.00 11.00 0.25 0.31 0.56 0.63 13 12
1414PHG6 1414PHG6LP 8.00 6.00 6.00 6.75 4.88 5.51 8.75 4.00 5.64 9.50 1.00 5.00 0.31 0.25 0.63 0.56 8 7
1414PHI6 1414PHI6LP 10.00 8.00 6.00 8.75 6.88 5.51 1.75 6.00 5.64 11.50 1.00 7.00 0.31 0.25 0.63 0.56 12 10
1414PHJ6 1414PHJ6LP 10.00 10.00 6.00 8.75 8.88 5.51 1.75 8.00 5.64 11.50 1.00 9.00 0.31 0.25 0.63 0.56 14 12
1414PHL6 1414PHL6LP 12.00 12.00 6.00 10.75 10.88 5.51 12.75 10.00 5.64 13.50 1.00 11.00 0.31 0.25 0.63 0.56 17 15
1414PHMH6 1414PHMH6LP 14.00 8.00 6.00 12.75 6.88 5.51 14.75 6.00 5.64 15.50 1.00 7.00 0.31 0.25 0.63 0.56 12 10
1414PHM6 1414PHM6LP 14.00 12.00 6.00 12.75 10.88 5.51 14.75 10.00 5.64 15.50 1.00 11.00 0.31 0.25 0.63 0.56 19 17
1414PHRM6 1414PHRM6LP 12.00 14.00 6.00 10.88 12.75 5.51 12.75 12.00 5.64 13.50 1.00 13.00 0.25 0.31 0.56 0.63 19 17
1414PHN6 1414PHN6LP 16.00 10.00 6.00 14.75 8.88 5.51 16.75 8.00 5.64 17.50 1.00 9.00 0.31 0.25 0.63 0.56 18 15
1414PHO6 1414PHO6LP 16.00 14.00 6.00 14.75 12.88 5.51 16.75 12.00 5.64 17.50 1.00 13.00 0.31 0.25 0.63 0.56 23 21
1414PHRO6 1414PHRO6LP 14.00 16.00 6.00 12.88 14.75 5.51 14.75 14.00 5.64 15.50 1.00 15.00 0.25 0.31 0.56 0.63 23 21
1414PHK8 1414PHK8LP 12.00 10.00 8.00 10.75 8.88 7.51 12.75 8.00 7.64 13.50 1.00 9.00 0.31 0.25 0.63 0.56 18 15
1414PHM8 1414PHM8LP 14.00 12.00 8.00 12.75 10.88 7.51 14.75 10.00 7.64 15.50 1.00 11.00 0.31 0.25 0.63 0.56 20 18
1414PHO8 1414PHO8LP 16.00 14.00 8.00 14.75 12.88 7.51 16.75 12.00 7.64 17.50 1.00 13.00 0.31 0.25 0.63 0.56 25 22
1414PHO10 1414PHO10LP 16.00 14.00 10.00 14.75 12.88 9.51 16.75 12.00 9.64 17.50 1.00 13.00 0.31 0.25 0.63 0.56 26 23
Data subject to change without notice.
¹ Does not meet JIC Requirements
© 2017. Hammond Manufacturing Ltd. All rights reserved.

1414PHO8

Mfr. #:
Manufacturer:
Hammond Manufacturing
Description:
Electrical Enclosures Steel+HingeClampDoor 16x8x14" w/Panel N12
Lifecycle:
New from this manufacturer.
Delivery:
DHL FedEx Ups TNT EMS
Payment:
T/T Paypal Visa MoneyGram Western Union